Menú
<< proyecto anterior siguiente proyecto >>

Templo de Santo Domingo: restauración integral y reestructuración del templo

Centro Histórico, Zacatecas, Zacatecas, 2009

Cliente: Gobierno del Estado de Zacatecas. Secretaría de Obras Públicas

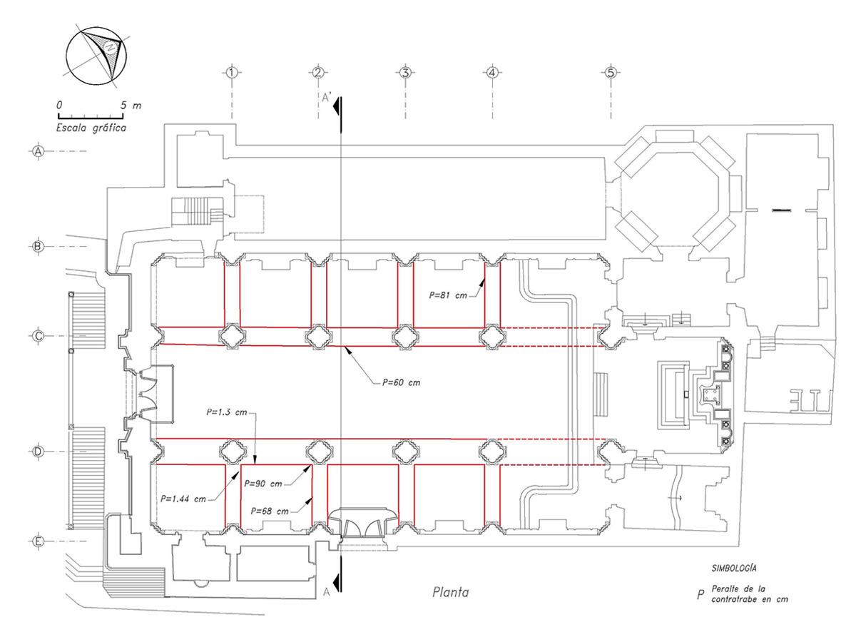
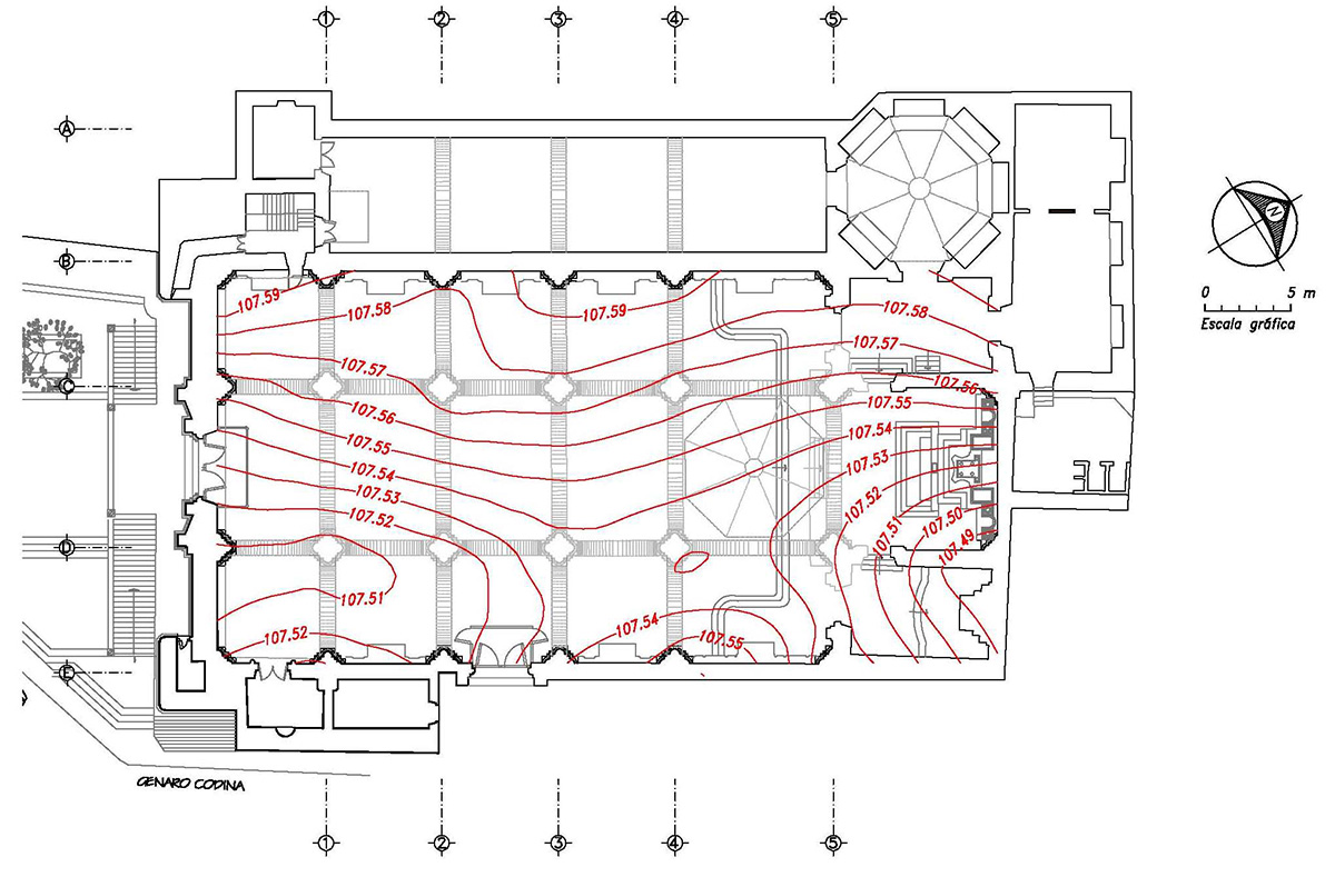
Este majestuoso templo se remonta al año 1616, cuando los jesuitas erigen una construcción sencilla dedicada a la Inmaculada Concepción. Entre 1746 y 1749 se amplió el edificio anexando las dos naves laterales, portadas y la sacristía de forma octogonal. El equipo de CAV realizó las obras de rehabilitación del templo, para lo cual confinó las bases de cimentación de columnas y elaboró los dados de confinamiento a base de concreto armado, se inyectaron grietas en muros, arcos y bóvedas, y se consolidaron columnas mediante inyección por puertos; se sustituyeron piezas de cantera dañada en las columnas y se reintegró la pintura decorativa de las bóvedas.

 

Asimismo, CAV realizó trabajos de investigación, excavación y rescate arqueológico: se descubrieron una cripta y 42 cuerpos momificados.

Responsables de obra: Arq. Óscar Carro, Arq. Manuel Palma

especialidades

premios

[Leer en PDF]

noticias relacionadas

Proyecto de reestruturación del Instituto de Ingeniería de la UNAM. Estudio de mecánica de suelos, Ing. Enrique Santoyo.

Proyecto de reestruturación del Instituto de Ingeniería de la UNAM. Estudio de mecánica de suelos, Ing. Enrique Santoyo.

Proyecto de reestruturación del Instituto de Ingeniería de la UNAM. Estudio de mecánica de suelos, Ing. Enrique Santoyo.

Proyecto de reestruturación del Instituto de Ingeniería de la UNAM. Estudio de mecánica de suelos, Ing. Enrique Santoyo.

Proyecto de reestruturación del Instituto de Ingeniería de la UNAM. Estudio de mecánica de suelos, Ing. Enrique Santoyo.

Proyecto de reestruturación del Instituto de Ingeniería de la UNAM. Estudio de mecánica de suelos, Ing. Enrique Santoyo.

Proyecto de reestruturación del Instituto de Ingeniería de la UNAM. Estudio de mecánica de suelos, Ing. Enrique Santoyo.

Proyecto de reestruturación del Instituto de Ingeniería de la UNAM. Estudio de mecánica de suelos, Ing. Enrique Santoyo.

Proyecto de reestruturación del Instituto de Ingeniería de la UNAM. Estudio de mecánica de suelos, Ing. Enrique Santoyo.

Proyecto de reestruturación del Instituto de Ingeniería de la UNAM. Estudio de mecánica de suelos, Ing. Enrique Santoyo.

<< proyecto anterior siguiente proyecto >>