Menú
<< proyecto anterior siguiente proyecto >>

Antigua Casa de Moneda de México: trabajos de restauración y adecuación del inmueble

Centro Histórico, Ciudad de México, 2013

Cliente: Casa de Moneda de México. Dirección Corporativa de administración y asuntos jurídicos

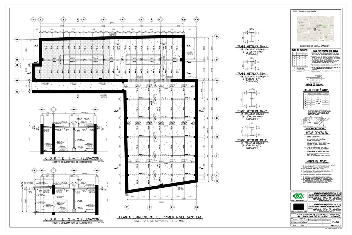
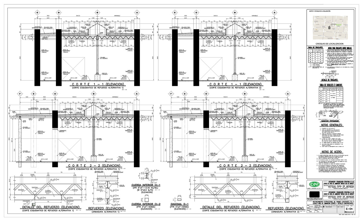
El equipo de CAV realizó las obras de restauración y adecuación de la zona 5 (amonedación) y la zona 2 (patio principal) de este inmueble. Entre otros, se llevaron a cabo trabajos de lavado de loza, se fijó una malla electrosoldada a los plafones para su posterior aplanado y pintura; se reforzaron vigas y trabes estructurales, y se restauró la cantera en columnas, pilastras y cornisas del patio central. Asimismo, se llevaron a cabo trabajos de carpintería en puertas y ventanas, y de recuperación de  herrerías. El equipo de CAV también estuvo a cargo de la realización y ejecución del proyecto de iluminación en los patios central, intermedio y de acceso.

Responsables de obra: Ing. Ricardo Padilla, Arq. Violeta Villalobos

especialidades

boletín

La participación de CAV Diseño e Ingeniería en la restauración del edificio de Casa de Moneda que se encuentra ubicado en la calle de Apartado No.13, en la ciudad de México se realizó en dos etapas de ejecución.

[Leer en PDF]
<< proyecto anterior siguiente proyecto >>