Menú
<< proyecto anterior siguiente proyecto >>

Biblioteca de México José Vasconcelos: Conservación, restauración y adecuación de espacios para los fondos bibliográficos "Antonio Castro Leal", "Alí Chumacero" y "Carlos Monsiváis"

Antigua Plaza de la Ciudadela, Ciudad de México, 2011

Cliente: Consejo Nacional para la Cultura y las Artes. Dirección General de Sitios y Monumentos del Patrimonio Cultural

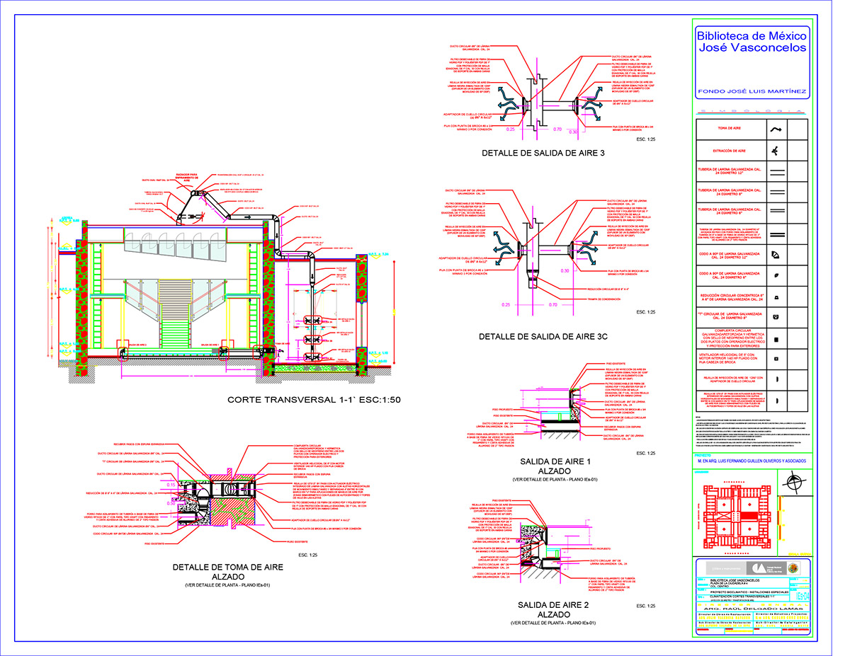
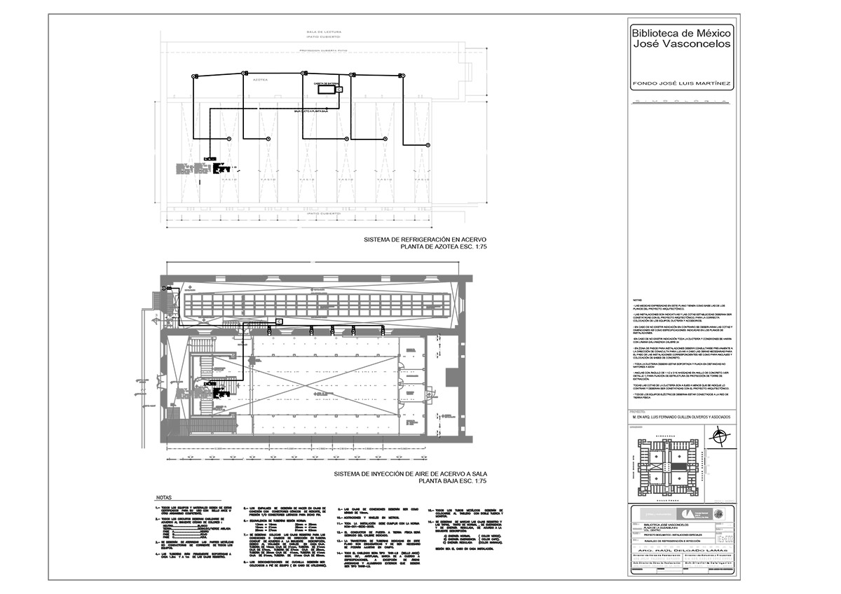
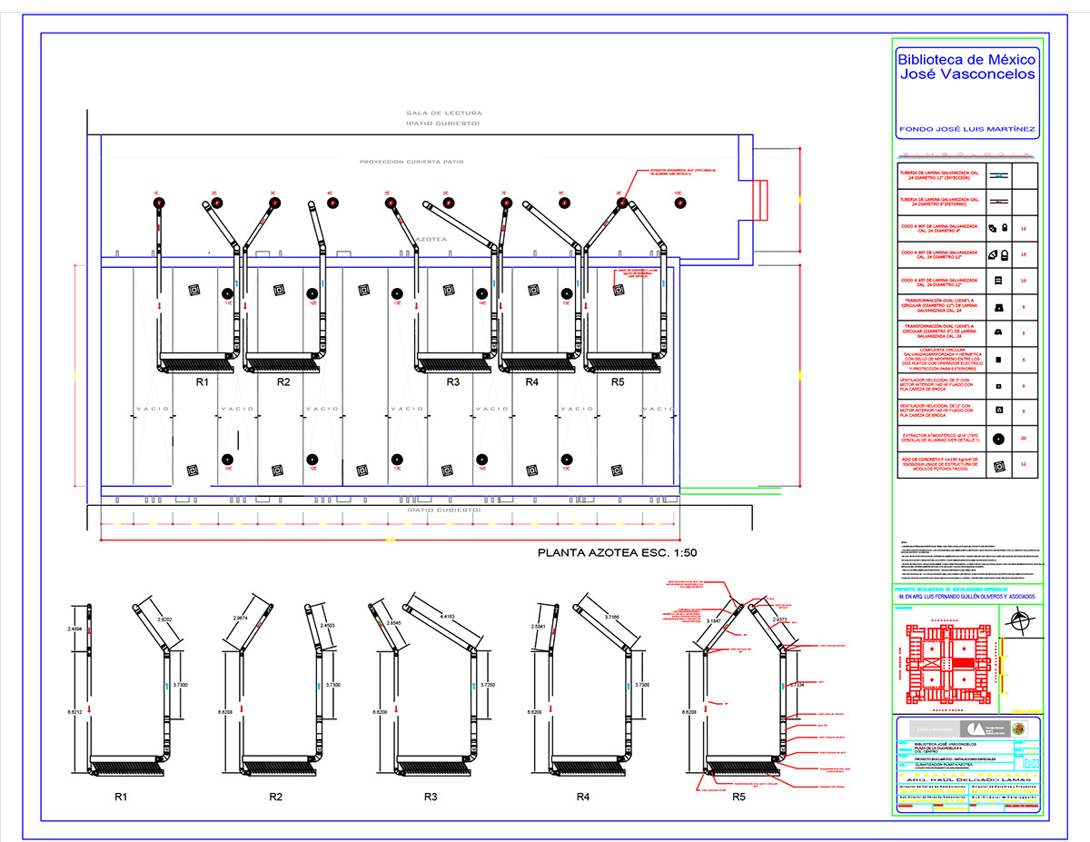
CAV estuvo a cargo de la restauración de espacios en dos crujías del ala norte del monumento histórico denominado Antigua Ciudadela, hoy Biblioteca de México José Vasconcelos, para resguardar los Fondos bibliográficos "Antonio Castro Leal", "Alí Chumacero" y "Carlos Monsiváis"; se realizaron trabajos de conservación y restauración para la instalación de los Fondos bibliográficos, así como obras complementarias.

Responsables de obra: Ing. Ricardo Padilla

especialidades

CASTRO LEAL

 

 

ALÍ CHUMACERO

 

 

CARLOS MONSIVAIS

 

noticias relacionadas

<< proyecto anterior siguiente proyecto >>